全国咨询电话
150 1600 6490新研发工位自转环形导轨输送线,搭载精准自转驱动系统,工位旋转角度可调且定位精度达 ±0.05mm,环形布局紧凑省空间。适配 3C 电子精密装配、新能源部件焊接、医疗器械组装等
立即咨询
请留下您的邮箱地址,我们的专业人员会尽快与您联系!
产品详情
3m/s/定制
链条传动 / 同步带传动
高精度重复定位: ±0.05mm
圆形 / 椭圆形 / 矩形 / 定制
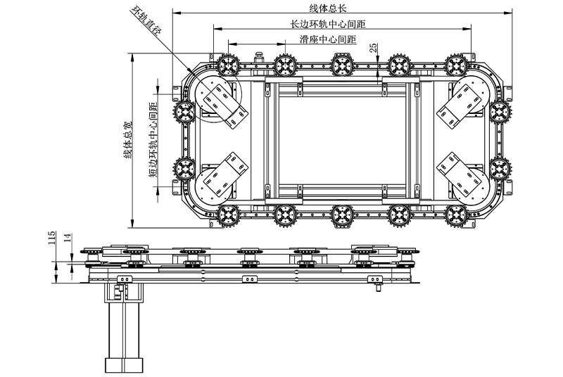
工位自转环形导轨输送线_矩形型材单轨链条传动水平安装

| 结构特点: |
| ○ 形状-矩形 |
| ○ 底板结构 |
| ○ 链条传动 |
| ○ 特殊设计难度 |
| ⾮标定制注意事项: |
| * 可选8A/10A/12A等规格链条,间距为链节的双倍数 |
| * 最小圆弧直径200mm,最大圆弧直径1560mm |
| * 转弯部分直径可参考我司《GMP产品手册》 |
| * 速度与负载、客治具尺寸、环轨大小、偏载大小等有关 |
滑座:可选用钢制或铝制优质材料进行精密加工,经过严格的质量控制及精湛的装调工艺。可使滑座在Z-X-Y方向精度达到HP级,即≤±0.05mm
工位自转柔性加工:每个工位搭载独立伺服自转模块,可实现0-360°无级调速旋转,支持定点启停与角度精准定位,满足工件多面装配、检测、喷涂等工序,无需额外翻转设备,大幅提升加工效率。
型材轻载高效适配:铝镁合金型材支撑较传统结构减重40%,模块化拼接设计适配矩形轨道直角转向,水平安装无需额外承重加固,同时型材预设走线槽,优化自转模块线路布局,整洁美观。
矩形布局空间优化:矩形闭环轨道契合车间规整布局,直角段适配直线加工工位,圆弧段实现平稳转向,单轨设计节省50%横向空间,可灵活布置多工位并行作业,提升厂房利用率。
3C产品外壳加工:手机、平板外壳多面打磨、喷涂、丝印,工位自转实现360°无死角处理,矩形布局适配多工序串联,配合链条传动精准定位,提升产品一致性。
小型家电零部件装配:智能音箱、小家电底座多面锁付、贴标,自转工位可精准调整装配角度,型材支撑轻量化设计便于与机器人协同作业,缩短生产节拍。
汽车零部件检测:车载小零部件多面视觉检测、尺寸测量,工位自转带动工件旋转,实现全方位检测,水平单轨布局适配检测设备密集部署,减少空间浪费。
自转规格定制:矩形轨道长宽尺寸可定制,工位自转速度0-5r/min可调,支持单工位独立控制或多工位同步自转,适配不同工件加工节拍。
型材快装优化:铝型材预设安装基准孔与调平组件,水平安装误差≤0.15mm/m,模块化拼接调试效率提升60%,支持后期工位数量与布局扩展。
系统集成适配:预留PLC控制与机器人联动接口,可集成视觉定位、自动夹紧设备,实现自转角度、输送位置与加工工序的全流程智能化管控。
相关产品
相关常见问题解答
Q: 有哪些类型的环形导轨?
按形状可分为椭圆环形导轨、矩形环形导轨、异形环形导轨等;按传动方式可分为同步带环形导轨和链条环形导轨。
Q: 环形导轨的精度如何?
重复定位精度可达±0.05mm,具体精度取决于导轨的设计和制造工艺、所选元件的质量以及其他因素。
Q: 环形导轨能适应多严苛的生产环境?
可选IP65防护等级,支持-20℃至80℃的温度范围,在防尘潮湿环境下需要加装防尘罩。
Q: 是否支持定制和兼容性?
根据客户的具体需求,例如导轨形状、尺寸、承载能力、精度要求、传动方式等,我们为客户提供定制化的圆形导轨系统。
第三方兼容性:支持与ABB、KUKA机械臂以及基恩士、康耐视视觉系统无缝对接,并提供标准化的通信协议。
Q: 环形导轨输送线适用于哪些行业?
适用于汽车制造、电子行业、药品包装、日化产品、航空航天技术、新能源电池、科研监测等行业。
相关视频
我们的矩形精密环形导向输送线用于心脏起搏器的自动化生产。
准备好见证自动化技术的实际应用了吗?
环形轨道输送线:适用于奢侈品零售和展览的智能展示
查看更多